Background image for the property website design

1035 N. Sierra Street
Reno, NV 89503

Presented by

Timothy Lambdin

Contact

Timothy Lambdin
Property photo
$1,175,000
Lots and Land
Lot: 0.18 acre(s)
MLS #: 250052364
Note: The property information has not been updated in the last 2 months. Contact the listing agent for up-to-date info.
 

Photo Gallery

By clicking "Send" you agree to be contacted by Timothy Lambdin of Lambdin Property Group at Nexthome Yourpickettfence Group) and its affiliates via phone, text message, or email at the number and email address provided. These communications may be made using an automatic telephone dialing system or prerecorded voice. Your consent is not a condition of any purchase. Standard message and data rates may apply. By submitting this form you also confirm that you have read and accept the Privacy Policy
 

Presented by

Timothy Lambdin

Timothy Lambdin
Lambdin Property Group at Nexthome Yourpickettfence Group
NV Broker/Sales #7450
(775) 813-3414
Email:  [email protected]
www.renorealtorhomes.com

Facebook YouTube Zillow 

Listed by: Tim Lambdin Nexthome YPFG

Other languages:
Spanish French German Portuguese Chinese Italian Russian Japanese Korean  Arabic

1035 N. Sierra Street
Reno, NV 89503

Offered at
$1,175,000

Property photo
Lots and Land
Lot: 0.18 acre(s)
MLS #: 250052364

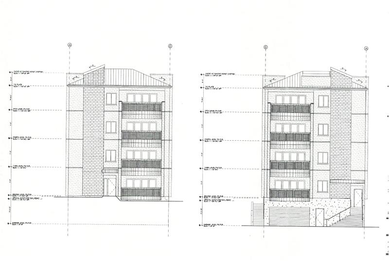
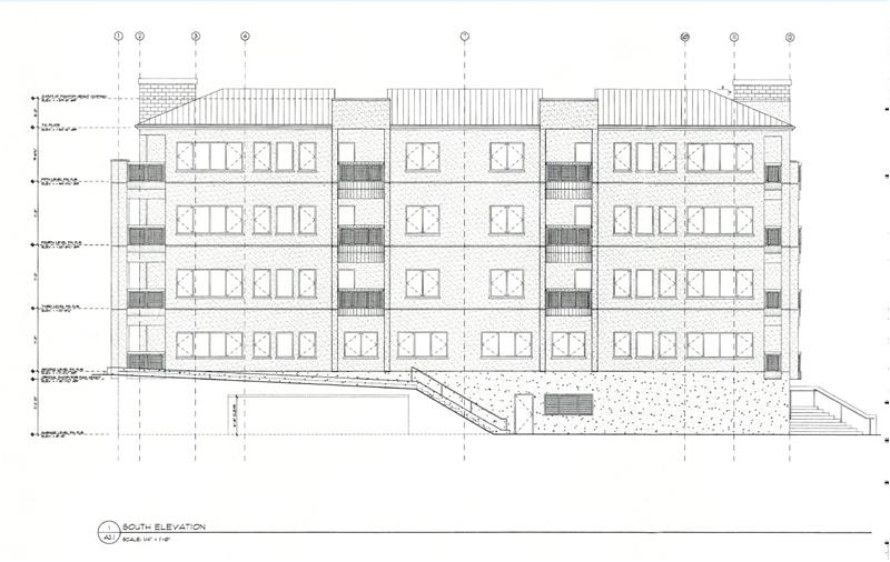
Lots and Land for sale in Reno, NV

Development parcel with teardown shell, ready for up to 28 units. Right across from UNR, student housing is in high demand. Seller has concept plans that were received favorably at the City. Previous use left 13 hookups to water and sewer, should be transferrable to new owner at development credits. Seller has spent years getting it to the stage.

Property photoProperty photoProperty photoProperty photo
Map of 1035 N. Sierra Street, Reno, NV 89503, USA
Timothy Lambdin

For more information contact:
Timothy Lambdin
Lambdin Property Group at Nexthome Yourpickettfence Group
NV Broker/Sales #7450
Phone: (775) 813-3414
[email protected]

Company logo QR Code
Equal Housing Opportunity Equal Housing Opportunity