Modern Architectural Design & Build
Construction Quality: This high-quality 2008-build features a contemporary professional design with a focus on durability and low-impact maintenance.
Parking & Access: The property offers a superior 4.84 per 1,000 SF parking ratio, providing ample space for medical patients and professional clients—a critical competitive advantage over "land-locked" offices in Downtown Naples.
Natural Light: Units are designed with expansive window lines, specifically configured to provide natural light to multiple interior private offices, enhancing the workplace environment.
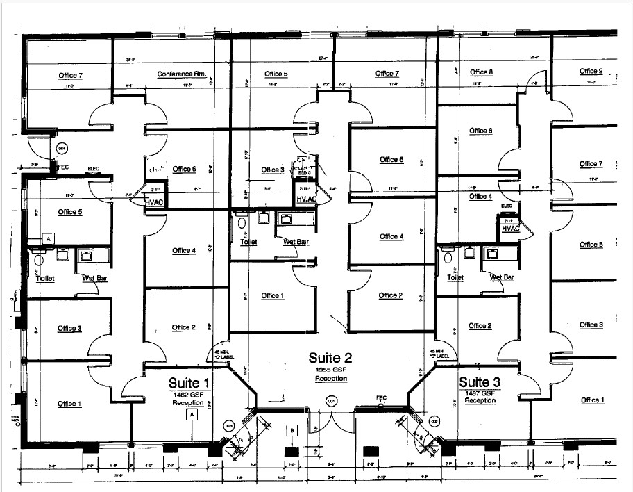
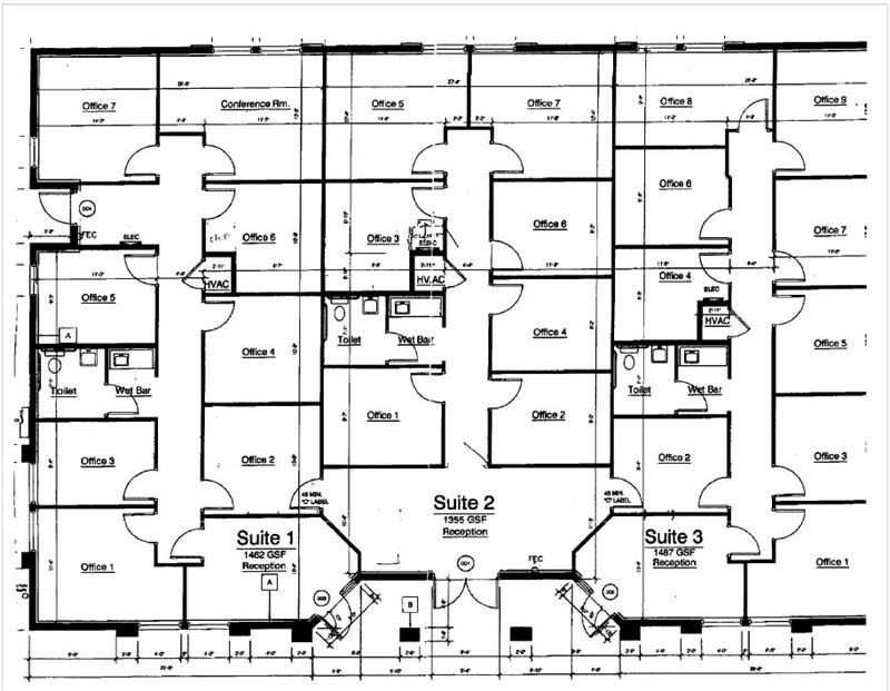
The "Move-In Ready" Suite Efficiency The building is demised into three highly efficient professional suites (ranging from ~1,350 to 1,487 SF). Each suite is meticulously planned to maximize "billable square footage" for medical and professional users
Private Layouts: Each unit features 8+/- private offices, making them ideal for partitioned medical exams, law offices, or private wealth management suites.
Self-Contained Amenities: Every suite includes its own private restroom, kitchenette, and dedicated storage/data room, ensuring tenants have total operational independence.
Tenancy Synergy: Currently home to elite medical wellness and internal medicine practices (e.g., Naples Longevity Clinic), the building’s ecosystem supports "High-End Concierge" service providers who cater to the surrounding golf-club demographics.
Operational Efficiency
Low Expense Load: The building is noted for its predictable and competitive NNN expenses (estimated at ~$6.70 PSF), keeping the "Total Occupancy Cost" attractive for high-quality tenants while protecting the landlord's bottom line.
Infrastructure: Features central HVAC (unit-specific), fire sprinklers throughout, and 10-foot clear ceiling heights, providing a spacious, airy feel to the professional interiors.
Unrivaled Growth Structure: Reset to 2026 market rents + 5-4-3-2% tiered escalation schedule.
Defensive Basis: Priced at a discount to replacement cost in a supply-choked medical corridor.
Strategic Accessibility: Equidistant to the wealth of North Naples and the rapid expansion of Estero.
Minimal Landlord Responsibility: Stabilized NNN/Gross-plus structure with a history of high tenant retention.
Traffic Count (Exposure): Approximately 34,700 vehicles per day pass this location on Bonita Beach Road. This high visibility is a primary driver for medical and professional service tenants who rely on brand recognition and ease of access.
Average Household Income: The 5-mile radius surrounding the property boasts an average household income of $93,554. This represents a significant concentration of disposable income, ideal for private-pay medical clinics and high-end professional services.
Median Property Value: The local housing market is anchored by a median home value of $562,500. In real estate terms, this indicates a stable, high-equity residential base that "protects the basis" of your commercial investment.
Get a commercial loan to purchase this building or any commercial property: www.LendingBlvd.com
Traffic Count (Exposure): Approximately 34,700 vehicles per day pass this location on Bonita Beach Road. This high visibility is a primary driver for medical and professional service tenants who rely on brand recognition and ease of access.
Average Household Income: The 5-mile radius surrounding the property boasts an average household income of $93,554. This represents a significant concentration of disposable income, ideal for private-pay medical clinics and high-end professional services.
Median Property Value: The local housing market is anchored by a median home value of $562,500. In real estate terms, this indicates a stable, high-equity residential base that "protects the basis" of your commercial investment.
The property functions as a regional nexus, providing frictionless access to the three most critical economic drivers in SWFL:
North Naples: 15–20 minutes (Direct access to high-net-worth demographic).
Estero/Coconut Point: 12–17 minutes (Professional services bridge).
RSW International Airport: 20 minutes (Logistics and regional connectivity).
The asset is a direct beneficiary of over $250 Million in neighboring capital injection:
Midtown Bonita (1 Mile East - Opening 2026): 68-acre mixed-use lifestyle center with 400 luxury units and 315,000 SF of high-end retail.
Revana Lakes (Immediate Proximity - Opening 2026): A 200-acre luxury gated community providing an immediate, high-net-worth patient base for medical tenants.
I-75/Exit 116 Expansion: Major infrastructure improvements currently underway to handle the massive traffic volume of the Bonita Beach Road professional corridor.
This property is located at 10971 Bonita Beach Rd, Bonita Springs, FL 34135

